//
Available For Projects
//
Floor plans, LiDAR scans, and immersive virtual tours for real estate professionals, property managers, and design firms across SoCal.
We serve all cities across Los Angeles County and Orange County.
From the Westside and San Fernando Valley to the South Bay, San Gabriel Valley, and the full stretch of the OC coastline, if your property is in LA or Orange County, we're local to you.
//
Information
//
Service Description.
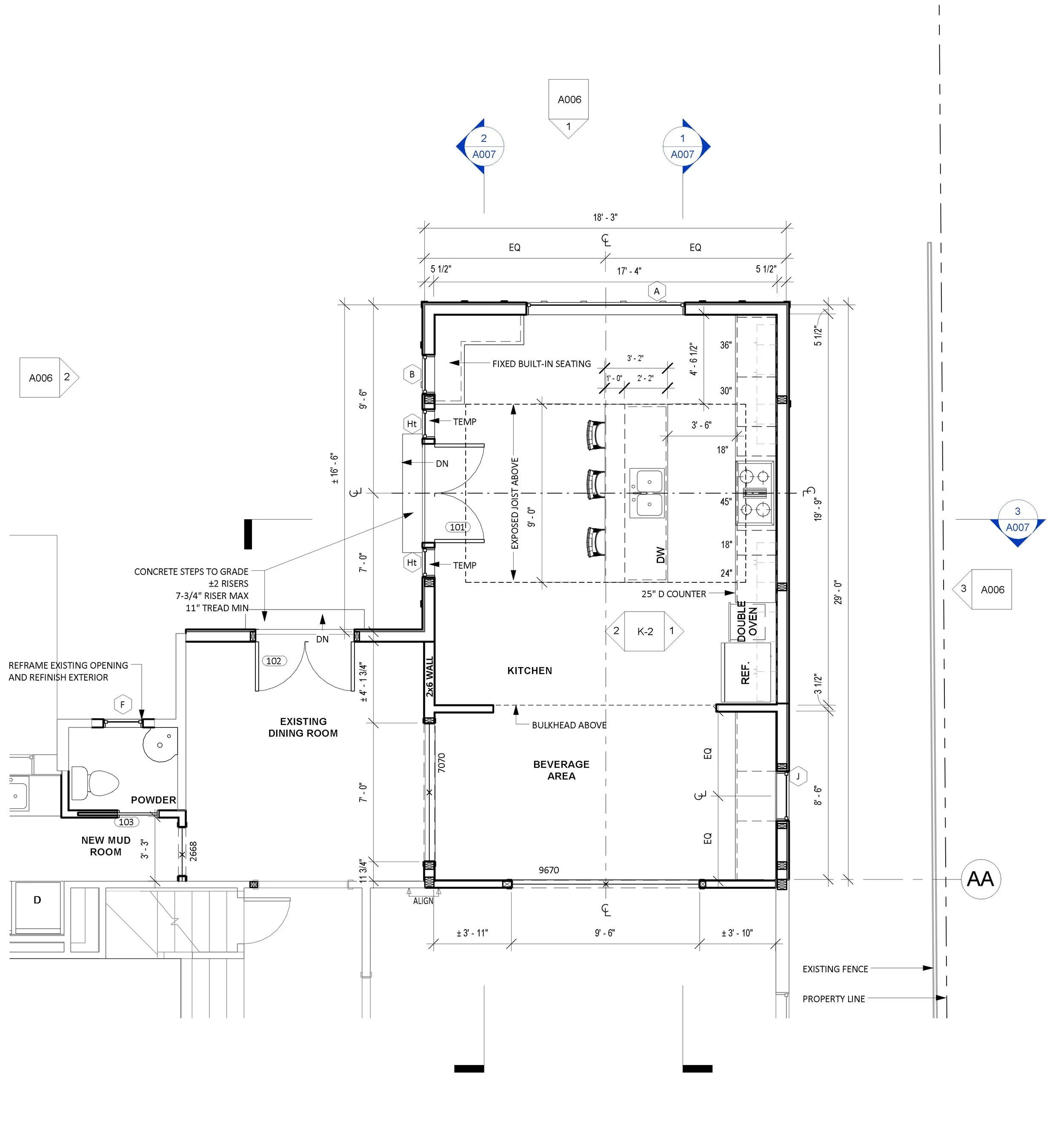
What Are As-Built Drawings?
When a building gets constructed, the plans on paper rarely match what ends up in the walls. Contractors make field adjustments. Rooms shift. Dimensions change. By the time the last nail is driven, the original blueprints are already out of date.
As-built drawings are the corrected record — measured directly from the existing structure, not from old plans or memory. Every wall, door, window, and ceiling height is verified on-site and drafted to scale. What you get is an accurate picture of the property as it actually exists today.
Why does that matter?
If you're renovating, your architect needs to know the real dimensions before they design anything. If you're permitting, the building department needs drawings that reflect existing conditions. If you're listing, buyers and agents want floor plans they can trust. If you're managing a portfolio, you need documentation that doesn't lie to you when something goes wrong.
Guessing costs money. Inaccurate drawings cause redesigns, failed inspections, and contractor disputes. As-builts eliminate the guesswork before the project begins.
What's included in a set of as-built drawings?
If you're renovating, your architect needs to know the real dimensions before they design anything. If you're permitting, the building department needs drawings that reflect existing conditions. If you're listing, buyers and agents want floor plans they can trust. If you're managing a portfolio, you need documentation that doesn't lie to you when something goes wrong.
Guessing costs money. Inaccurate drawings cause redesigns, failed inspections, and contractor disputes. As-builts eliminate the guesswork before the project begins.
//
Services
//
What we do.
We measure, document, and model existing properties, so you have accurate base data to list, manage, or redesign with confidence.
//
Benefits
//
Our Benefits.
One team. One site visit. Accurate documentation delivered fast with no coordination headaches and no guesswork.
Predictable Pricing
Know your cost before we show up. No hourly rates, no surprises. Just a clean number tied to your scope.
Fast Turnarounds
Most deliverables completed within 5 to 7 business days of the field visit. Rush delivery available on request.
Scan Once, Get More
Every scan day yields as-built drawings, a point cloud, and a virtual tour. Three deliverables, one site visit.
Revit & CAD Ready
Deliverables in .dwg, .pdf, and .rvt formats ready to drop into your existing design workflow.
SoCal-Based Team
We serve LA, Orange, Ventura, San Bernardino, and Riverside counties. We know what local jurisdictions need.
Permit-Ready Output
Drawings formatted to local jurisdiction standards. Your permit expediter will not ask for revisions.
//
Pricing
//
Pricing Tailored to You.
Flat per-square-foot rates. No hourly billing. No hidden fees. Predictable costs from the first conversation.
//
Locations
//
Service Areas.
Everything you need to know about working with As-Built Solutions.
What exactly are as-built drawings?
How do you measure the property?
What file formats do you deliver?
How long does a typical project take?
What areas do you serve?
Can I order a virtual tour without the as-built drawings?
//
FAQs
//
FAQs.
Everything you need to know about working with As-Built Solutions.
What exactly are as-built drawings?
How do you measure the property?
What file formats do you deliver?
How long does a typical project take?
What areas do you serve?
Can I order a virtual tour without the as-built drawings?
//
Contact
//
Let’s talk.
Ready to document your property? Send us a message and we will respond within one business day.








