WAPELLO
A 4,000+ SF hillside estate, fully documented. Two stories, three split levels, a circular rotunda, JADU studio, and every accessory structure captured in a complete as-built drawing set.
//
Location
Hollywood Hills
//
Category
Residential
//
Timeline
2 weeks

// Project Scope
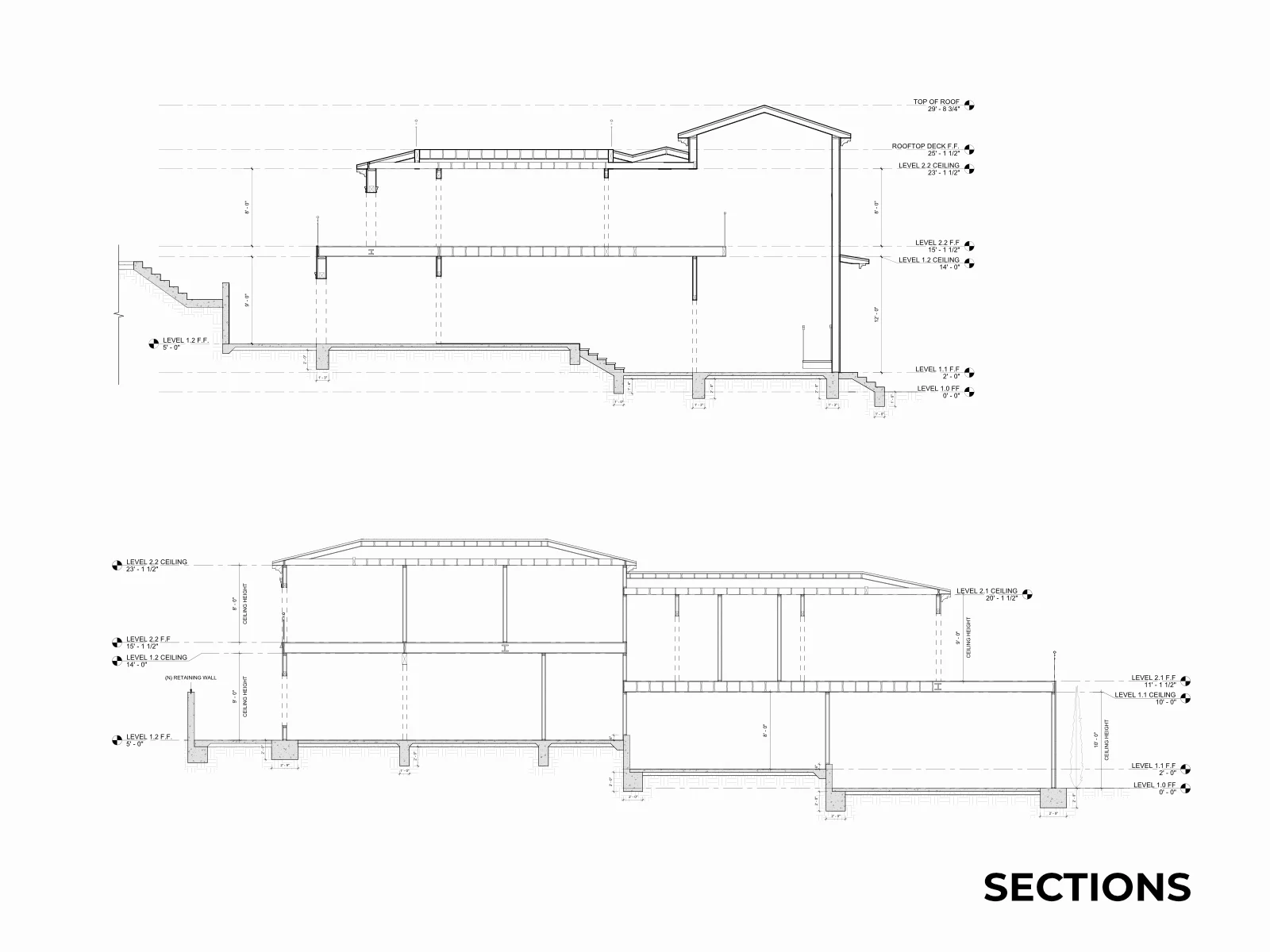
Two-story hillside residence with attached JADU/studio, two-car garage, and all accessory structures. Full field verification across three split levels, circular rotunda, covered and uncovered outdoor areas, detached gazebo, and pool deck.
// Deliverables
Existing site plan
First and second floor plans
Building sections with verified floor and ceiling heights
3D axonometric massing
Room area schedule
Revit model + permit-ready PDF set











