SAN VINCENTE (BLD2)
A 36-unit mid-century apartment building, fully documented. Three residential floors, subterranean parking garage, pool courtyard, and every unit captured in a complete as-built drawing set.
//
Location
Santa Monica
//
Category
Commercial
//
Timeline
1 week

// Project Scope
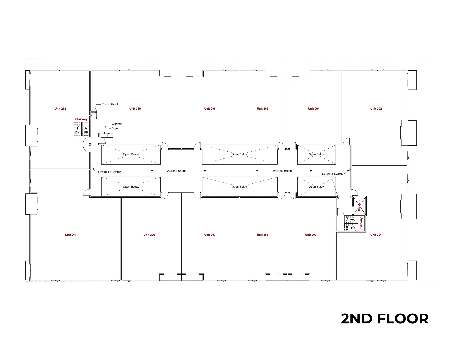
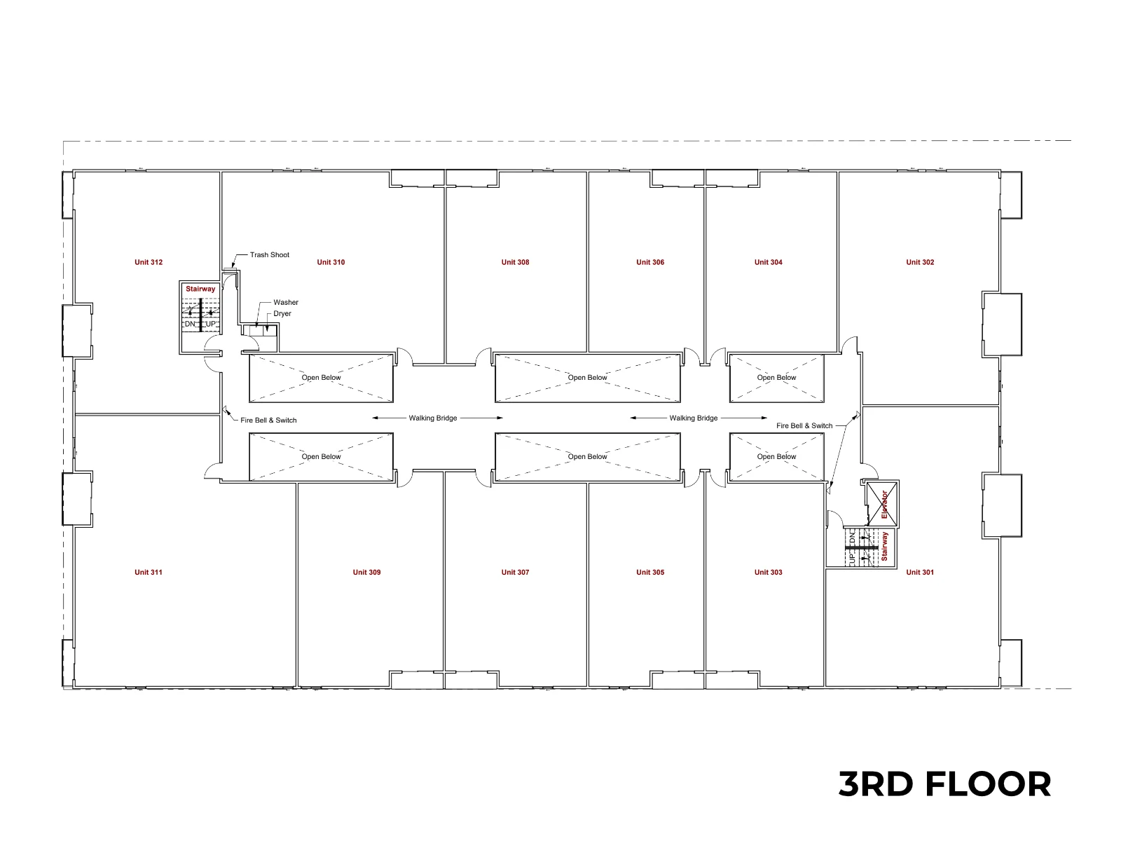
Three-story multifamily building with 36 residential units across floors 1 through 3. Full field verification of all unit layouts, interior walking bridges, common corridors, stairwells, elevator, laundry areas, and subterranean parking garage including all stalls, boiler room, storage, lobby, electrical panels, and pool equipment room.
// Deliverables
Site plan with full unit index
Floor plans for all three residential levels
Subterranean parking and ground level plan
Four building elevations with verified floor heights
Unit layouts with dimensions
Revit model + PDF set









